Интерьерные и ремонтные дела - 8
Перелезаем в новый топ. Старый вот тут: https://eva.ru/topic/77/3683740.htm?messageId=108997626
Для затравки - моя планировка )))
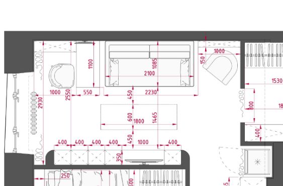
В нишу для морозилки и длинномеров, там еще и полки будут )))
За шторкой ))))
А дальше - стенка проходной гардеробной.
Так что, считайте, он до самой стенки )))
Я вот тоже думаю вертикальную. На даче у меня таким ларем. Вроде ничего, но надо в поисках все вынимать.
Я весной (надеюсь следующего года) начну ремонт всего первого этажа дома. Это 180 квадратов. Но у меня будет все уныло и не весело )
Все планы одобрены, переделка отопления в доме, установка тепловой помпы, перенос стен, установка балок, изменение окон на другую концепцию. Все чистовые материалы и планы будут сделаны заранее без всяких сюрпризов )
Я уже даже кухню выбрала и вот жду инженеров по «балкам» чтобы определиться с планировкой кухни )
Просто напишу, что это так замечательно, когда ремонт подходит к концу.
Вчера я работала из дому, и приходил среди дня архитектор.
Уже поспорили :)
Хотя он очень классный.
О дааа, когда чертов ремонт подходит к концу, это, наверно, здорово. Мой еще и не начался толком, а я уж не против, чтоб он закончился. Как Инга этот бедлам пережила - не ясно.
Мне ванну вот переделывают 🤣 одну стену переложить надо было. Из за затирки - затерши неудачно, и при демонтаже повредили плитку. Ну ладно, решили переложить.
Сбили, закупили плитку, просчитались с количеством , пошли докупать, а она в стране закончилась 🤣🤣🤣 ловлю дзен. Устала уже расстраиваться и напрягаться.
У моей дизайнерши (у самой) моя золотая бригада запорола заказные французские обои, 25 кв.м.
Говорит, рыдала...
Всякое бывает. Мои за свой счет все переделывают - их косяк. Но вот с количеством конечно треш. Она мелкоформат и что-то они косякнули.
плитку купить с запасом, лучше потом избавиться по излишков по дешевке, чем бегать искать, еще и из другой партии окажется с другим оттенком
ДЕВЫ! давайте обнимемся!
Я вчера так и не запустила мебель. Даже кухню( Частично вопросы к замерам, но самое хреновое -кнопку слива унитазов сделали НЕСИММЕТРИЧНО! Будут переделывать + замена плиток. Поэтому шкафы над унитазами тоже не запустили... Из плюсов. Выбрала светильники в спальню, уложила в голове полную концепцию. На рендере цвет и фактура ткани кровати не та, но все же. На стену будет вот такое, из магазина лофт-концепт.





:D:D Мой первый ремонт в 2000 году. Ванная метров 10 и там буйство выкладок плитки, цветов и размеров. Для подвесного унитаза приготовлена большая темно вишневая стена в плитке, где ровно посередине должен гордо висеть белый унитаз ) Все планы сделаны и переданы бригадиру.
Бригадир решает, что туалет должен быть не посередине стены, а в углу. Ну типа, как можно срать в середине пространства :D
Я требую переделать. В день переделки, он начинает мне трезвонить, а я в середине моей презентации, стою в перед большим количеством людей. Вышла из переговорки и как я материлась на него и дизайнера.. Кто бы слышал :D
Вот я никак понять не могу, у этих товарищей настолько творческая жила перешивает все схемы, планы, договоренности, что им просто жизненно важно выплотить свои задумки, а не хозяйские?)))) Неужели не понятно, хотя бы с многолетним опытом, что делать то, что говорит, хозяин, элементарно даже материально выгождно, потому что не придется из своего кармана оплачивать косяки, а если придется что-то переделывать, то это уже за счет хозяина, а это и есть благо, работа за деньги
Для меня это прямо всегда было загадкой.
Ну кстати не только у наших. Предпоследняя ванная, делали поляки. Тоже те еще дизайнеры по плитке. Знали лучче, чем я, как надо выкладку делать. Вот хоть кол на голове теши ))
Эххххх(((
У меня на стадии демонтажа все уже слегка не так... На втором этаже, не смотря на все замеры и тд, по высоте не приходит душ. Будем ставить ванную.....
Хорошо, что плитку не заказала, потому что меняются все расчеты....
Если люди знают, что делают - не испортят. Стены надо подготовить перед укладкой плитки и все будет нормально.
Как я могу быть уверена, что они знают? Я себе-то, бывает, не верю. Ну ладно, на обои у меня есть проверенный таджик по имени Асадулло, уже три квартиры поклеил - норм.
Ходим смотрим, уже 100500 ремонтов посмотрели. Пришла к выводу, что все серое, скучное, парящий плинтус, парящая потолочная хрень. Интересный опыт, но, мне кажется, это мало поможет. Потому что тут штукатурил Ахмет, а мне будет какой-нибудь Мончегор. И никак я это не отслежу.
Вообще не поняла. Причём тут - скучное или веселое? Надо оценивать качество самой работы. Плитка - положена профессионально или нет. Рекомендации берут с именем того человека, который штукатурил ( в вашем случае - клал плитку )
Старая штукатурка - не поверхность, на которую можно класть плитку.
В каком бы состоянии она ни была. Только сбивать до балок.
Единственное - маааленький кусочек небольшой площади может пройти
У нас уже нет старой штукатурки, ее сбили. Под ней крошащиеся блоки и местами треснутые кирпичные стены.
Тогда надо делать сначала фрейминг - каркас, а на него кже крепить специальные листы под плитку.
Кстати, такой совет, если есть трещины. Сейчас у вас самое подходящее время поставить мышеоборону.
Мы, когда вскрывали стены, всегда туда пихали такие ленты, не знаю, как по-русски, сейчас сфоткаю.
Делаем как раз предбанник в доме, с улицы и от соседей (общая стена) проложили вот только сегодня,
Вот такую штучку имею в виду.
Мыши - это факт жизни в человеческом жилье.
И я, например, не хочу их видеть никогда и ре при каких ксловиях
Я помню, что вы писали о первом этаже. Это правильно, но это не предохранит от мышей, которые могут проникать в стенах в небольшие трещинки.
У нас часть стен открыта - кирпич, от правых соседей, часть была полностью открыта и вычищена в свое время, мельчайшие дырки и углубления замазаны раствором, потом цемент борд - такие тонкие плиты, потом на них плитка - ванная.
Когда новые хозяева затеяли справа полный ремонт, несмотря на все, что я описывала с нашей стороны, у нас появились мыши.
Пришлось вызывать экстерминатора. Я пожалела, что в свое время в стенах, которые мы закрыли, не проложили такую штуку.
Но дело ваше, конечно.
Стоит копейки, легко укладывается на стыке пола и стены, пока открытые стены.
Я живу в соседней квартире. У нас нет крыс. И не было. У нас хорошая стяжка, а в стенах, видимо, нет дыр. А тут стена между ванной и туалетом была целиком сплошное крысиное гнездо, она была пустая внутри. Я такого никогда не видела - жуть и мерзость. У нас крысы живут в вентиляции . Подружки сын даже лапки в шахте видел. Была даже история про то, как у кого-то выпрыгнула крыса из мусоропровода. Мужик взял монтировку, пошел крысу убивать. Отрубил ей хвост, залил кровью пол квартиры, убил таки. Я не поняла, что это за штука. Это «металлическая стекловата»?
А это уже только собственный опыт, здравый смысл и интуиция.
Вспомнила смешное:
Мы переустанавливали дом на железобетонные колонны.
Все сделали, я спускаюсь - не так я себе представляла колонны! Стоят, но что-то не то.
И обьяснить нетмогу.
Лучшее, что могу выдать - эти красненькие и тоньше, а я ожидала толще, зелененькие ( видела, видимо, где-то).
Бригадир (у нас была русскоязычная бригада, никаких пока не было нареканий до того, работают, как часы, начинают ровно в 8, все в сроки, по договору, сотрудничают с нашим архитектором ). Бригадир, такой здоровый мордатый западэнец, мне говорит «пани Ольга,чого вы голову морочите!»
Типа что ты лезешь, что ты там понимаешь. Пришлось идти на конфронтацию, звонить менеджеру и привлекать архитектора.
Оказалась права. Таки зелененькие :) переделали.
По ом мне аохитектор обьяснил, что красные доя домкраченья, в рринципе их поставили достаточно, и дом не завалится, даже такой. Но зелененькие - постоянные, более мощные. Так стоят теперь зелененькие.
Я в австрии. Участок у нас небольшой. Ну уж какой есть )
У многих тут еще меньше. Земля очень дорогая и фик ее купишь.. )
Я задолбала Алину темой теплицы. А у вас есть огородик или такое в ваших краях не принято? У вас же теплее гораздо. Я помню домики с двориками в Турции, мы много гуляли с подружкой в районе Кушадасы, в частном секторе - никто не сажал ничего, вообще никаких грядок, а в Греции были домики с огородами. Просто интересно.
Еще нет. Но точно будет высокая грядка с овощами и зеленью. Планирую малину. Очень ее люблю и выращивала ремонтантную в вене тоже. Ну и абрикосы у нас растут. Было 3 дерева в саду. Весной одно сдохло, посажу новое осенью. Сейчас очень жарко )
А вы РФ по Алининому клочку равняете? ))) Ну вы сильно ошибаетесь в отсутствии зелени и пространства на российских участках
Да потому что все другое - другой климат, другое отношение к огородику, редко бывают большие придомовые участки.
Ну это инет или хвалить или ругать. Довольно обыкновенный участок, зачем хвалить в интерьерном топе тоже не понимаю. Возможно эта реплика "не в РФ" многое объясняет.
Получила сегодня справку от мосгаза. В целом, если знать правила, то многое можно менять в лучшую сторону.
Нам срезали трубу и сделали ее под столешницу (последний этаж), ну и вытяжку согласовали - вент окно закрыто фасадом, но решетки вывели в соседние ящики в дно. И их не видно.
Вообще мосгаз в плане работ молодцы, ценник только аховый 😞
Они очень отзывчивые. За хренилиард бабла. Мою трубу чуть перенести - 250 тыщ. От 250. А стояки, кстати, нам таки перенесли и очень нехило, завели новые из подвала. Если б я раньше знала, что так можно…
На этот раз БМ не налажала. Шкафчик в дочкину комнату сделан и собран вовремя и без ошибок.
В четверг утвердили окончательный вариант, сегодня в 15:00 шкафчик уже собран.
Ручки-котики приедут потом

Выравнивают все перепады, если не лечится, продают и покупают нормальное. В такое обычно не вкладывают большие суммы. Можно обойтись не встраиваемой мебелью. У вас цели не для той недвижимости. Вы из жигули мерс пытаетесь делать, не умно.
Нас СОВЕРШЕННО ТОЧНО устраивает наша квартира.
Сейчас это ОСОБЕННО заметно, мы считаем минутки, чтобы туда переехать и не можем по полчаса оттуда выйти....
Невстраиваемая мебель бы не получилась - радиусы + глубина 35.
На самом деле, получается дико удобно и красиво ))) И ПОФИГ на перепады ))))
Там, где пофиг - там дешевая мебель, в гардеробной, детской и кабинете мужа
По фото много чего много где не сливается ))) а вживую иначе.
Там же текстуры разные, свет по-разному отражают.
Задерет - выкрасим в цвет стен ))))))
Там несколько вариантов было.
1. На закрытой части настояла я, мне она нужна. Дизайнер рисовала без закрытой части сначала.
2. На ящиках снизу и более высокой нижней части - тоже я.
3. Также попросила уменьшить антресоль, она спускалась очень низко
4. Потом розетки внесли свое....
... ну, а потом они рассчитывали какие-то сечения ))) и сказали, что раз так - то вот так )))))
Понятно, что ничего не понятно) Симметрия просится, можно было тогда и слева такую часть поставить и сократить справа сецкию с открытыми полками. Я чисто порассуждать. А еще он на картинке вроде закругленный был?
А он и есть закругленный с двух сторон, по фотке не видно.
А с двух сторон - там диван получается не там... 
Чет надейзерненили ваши дизайнеры. Как и со шкафом в прихожей. Пространство под обувь можно красиво оформить, например так. У вас мне кажется на нору похоже и главное неудобно. Ну и этот шкаф в гостиной, честно говоря не понимаю какие там оси думали, но ……😬
Или вы коррективы вносили в проекты все, а они отговаривали от этих идей?

Бинго! Проект называется "Норы на Преображенке". Так что ИМЕННО похоже на нору.
На фига ПОДСВЕЧИВАТЬ обувь - ума не приложу.
На Ваших фотках - более неудобные варианты, ибо они сильно ниже нашей норы.
А что не так со шкафом в гостиной-то? :)))) Безусловно, СНАЧАЛА юзабилити, ПОТОМ красота - в нашем случае.
Это много раз обсуждалось )) Не уйдет, как я и говорила много раз )))
Почему не уйдет - никто так и не предположил, хотя я много раз оооочень уверенно говорила, что не уйдет и можно было предположить, что этот вопрос обсуждался и был решен ))) сказали, что вру )))))) и тут мнения разделились - вру всем или вру себе ))))
Не играйте. Тогда так и не узнаете, почему не уйдет ))
И придется просто поверить мне на слово.
Или не верить )))
От этого удобство норы не изменится ))))))))))
А включили бы головушку - поняли бы, что есть масса решений того, чтобы обувь не ушла вглыбь... и совершенно неважно, какое из них мы применили )))
Вы на одной ноге не устоите. И наклониться тоже не сможете. Палку надо ставить рядом, ей будете вытаскивать каждый день немытые чуни))))))
Функционально. Цвет дерева такой же как в прихожей?
А у дизайнеров не было предложения ввести асимметрию в фасады и полки, чтоб визуально нивелировать неровности?
Да, цвет тот же.
Он мне нравится.
Мое рабочее место и стеллаж а ля Яратам будет в гостиной в том же цвете.
Интересно - выше говорят, что нужно больше симметрии, Вы говорите об асимметрии )))
Там еще розетки диктовали свое... которые были размещены до окончательной разработки мебели.
Неровности... я уже много раз говорю об искажениях, которые дает широкоугольник при съемке. НЕТ такого ракурса, в котором ГЛАЗАМИ были бы видны они все. То, что на экране - это примерно 3 метра. Ну и, повторюсь, задачи сделать ПРЯМ РОВНО изначально не было.... мы отлично понимали, с каким именно помещением имеем дело и СОЗНАТЕЛЬНО забивали на будущие щели и прочее.
Совсем иначе смотрится цвет, в прихожей значительно интереснее, все таки неблагодарное это дело, фото на телефон)))
Не, выше про симметрию в геометрии, я кстати согласна с мнением. Я про отделку фасадов, что-то типа как на картинке. Ну то есть появляются дополнительные разнонаправленные линии и, вероятно, подобная клинообразная вставка сверху просто растворилась в контексте. 
А, фрезеровки )) Это + 100 тыщ к цене этой мебелины.
Не, я не была готова.
Тут будут ручки, стотыщ статуЕток и картинок... оно будет смотреться иначе.
А про телефон )))) Вот Вам фотки одного и того же места ))) и НИ ОДНА не отражает реальность ))))))
Это то, что сейчас называется фреской, а по сути является фотообоями )))
Про верхушку дерева только ленивый не упомянул )))
Живьем не так. На фото закругление потолка выглядит гораздо сильнее, чем в жизни + опять же, поле зрения, в которое сосна не помещается... так что оно отличное )))
Именно так оно и "срезано" в оригинале.
Я тоже так думала. Ан фиг. Сейчас фреской называют то, что бесшовное. А фотообоями - то, что со швами.
Вот мое (в других цветах)
https://applico.ru/catalog/oboi-i-panno/hvojnyj-les-0059-a/
В российском производстве это может так и выглядит, но на самом деле это стоит гораздо дороже и качественнее.
Что ЭТО? Ручная роспись по влажной штукатурке? Безусловно.
А печать на едином куске "бумаги" - вот так и выглядит.
... или ты опять ПО ФОТО судишь? :)))
Во-первых не ты! И бумажные фрески всегда стоили дороже, на порядок, даже лет 10 назад. Про фото даже писать не буду, не думаю что таким можно гордиться вашим дизайнерам. Посмотрим что он выложат в итоге, в портфолио.
Листала ленту сегодня у Понарошку в телеге и влюбилась в это изголовье.
Отговорите или поддержите.
У меня 4 кота, какие-то мягкие изголовья не рассматриваю, а это прям мой вариант же)
Это не для постоянной жизни, лично для меня точно. Можно остановится в таком отеле-апартах, почувствовать атмосферу места и домой. Инге об этом же написала. Не вкладывают, не живут, в помещениях с таким вайбом. сюда гобелены и прочие прелести французского шика нужны для комфортной жизни. Голые стены и обшарпанность облагораживать надо текстилем и прочими штучками.
Красиво, но, соглашусь, не для постоянной жизни. А вот провести недельку в подобном интернете было бы замечательно!
А чего отговаривать. И сделайте, раз в душу запало.. )
Старое зеркало не стала бы туда монтировать. Выпадет еще дай бог. А новое заказать вполне хорошо. Шаби шик я так понимаю вам близок. Ну и сделайте )
Инга, вчера увидела ваш вопрос про лак для обоев.
Не вижу больше ваш топ. Лучше всего брать специальный акриловый защитный лак для обоев. И смотрите на отзывы. Они частенько темнеют на обоях или желтеют.
Лучший вот этот https://polyvine.com/product/decorators-varnish/
Но посмотрите, может в дулюксе или в финских брендах есть тоже.
ПС и матовый.
Дизайнеры, скорее всего в осадок выпали. :party2
Как наш баумайстер, когда я ему сказала, что в ванной будут обои :chr3
Они же и так покрыты защитным слоем. Лак также и будет обтираться в "проходных" местах, еще и вместе с верхним слоем обоев
Это как раз евы изо всех сил советовали.
Наши девы пожали плечами и сказали: "Ну давайте попробуем".
Считаете, не надо? :))))))))
то есть, считаете, что не надо? Напишите свое мнение русским по белому, плз.
В СУЩЕСТВУЮЩИХ условиях, без вот этого вот "всё продать и купить пентхаус на Остоженке или 100 кв.м. в Павшинской Пойме" )))))))
Лак вот такой очень неплох в работе, хорошее прочное покрытие, использовала неоднократно. Да, считаю, что покрыть обои лаком необходимо.
Лак для дерева и мебели без запаха матовый 0,8кг, LUNE COLOREE https://www.wildberries.ru/catalog/150720995/detail.aspx
Потому что заказчик с припе$дью)) У этого заказчика всё с каким-то кордебалетом, начиная от самой квартиры и заканчивая мебелью. Ну и цель у заказчика потратить как можно больше миллионов на ремонт старой убогой квартиры. А потом это все закрашивать, перекрашивать и покрывать лаком за дополнительные деньги. А, и еще одна цель у заказчика - чтобы дизайнеры хорошо заработали. Они же тоже люди и хотят хорошо кушать! Но самое главное, что заказчик счастлив наклеить обои в микроскопический туалет. Но другие люди никак не могут понять этого счастья, поэтому настойчиво советуют какие-то лаки для обоев… Вот отсюда и весь сыр-бор.
Так почему она не объединила туалет и ванную?
Все равно пол квартиры перекроено и нужно официальное согласование.
Инге точно нужен общий туалет и ванная. И ванной душевая кабина.
Такими темами ,как она толстеет, скоро в туалет ее будут заносить, а в душевой мыть((((
А как это сделать ,если о сама туда уже не помещается?
Какая вы злобная?!:scared2
А по теме, человек, скорее всего, сам может решить, как ему удобнее. Ему там жить, не вам.
Помещаюсь ))) Как раз в душевой стало гораздо комфортнее )))
И в туалет помещаюсь ))))
Я - помещаюсь, плитка - нет ))))
И нет, нам ТОЧНО не надо ничего объединять.
Ни туалет с ванной.
Ни кухню с гостиной.
Живите одним днем и думаете только о себе!
Я умоляла родителей сделать душевую кабину во время ремонта 20 лет назад.
Они наплевали, сделали ванну.
Сейчас папа не ходит , а в нем 140 кг. Как его мыть в ванной?
Как мне, которая на 20ть тоже старше переносить папу?
Делать сейчас ремонт? на последние деньги?
Они обо мне не думали, так Вы не думаете о своей дочери! Единственной дочери при чем!
Потому что хочется. ))
У меня внизу будет плитка, а сверху обои. Ванная в викторианском стиле. Вот так я вижу )) Но в этой ванной не будет душа и ванны, только собак мыть..
У меня зеленая с трещинами. Это уже моя фотка образца )
Обои тоже одобрены ) Обои - вайб викторианской ванной. Одну в доме можно позволить сделать )
Плитка до потолка это нет )
Слишком тяжело на мой взгляд. Ну и потом там ванны никто принимать не будет. А сделать максимально, как комнату в обоями - большой соблазн )
Мне кажется, так норм. Так обои я тоже рассматриваю. У меня будет плитка до конца двери в туалете, потому что до потолка 4 метра, нет смысла выкладывать это плиткой.
Ой нет. Я отболела плиткой до потолка в ванной. Особенно, когда потолки высокие. По высоте двери, абсолютно согласна. Дальше краской, белой или цветной в силу желания поиграться.. )
Плитка Керама Марацци? ))
Делаем ремонт, душевая с такой, ванна с Моне
Смотрю, много кто их себе тоже делает
Так, давайте по пунктам.
1. В ВАННОЙ - плитка до почти до потолка по всем стенам
2. Обои - в туалете, который с ванной НЕ объединен (как и кухня с гостиной НЕ объединена), но сделан минимально возможным по габаритам, чтобы сделать полноценную душевую в крошечной советской ванной, а также разместить там раковину и стиралку. Поэтому в нем экономим каждый миллиметр.
3. Да, мы с при@дью, которая заключается в том, что мы делаем ремонт так, чтобы НАМ было удобно, а не евским анонимкам, да и цветным никам.
4. Да, мы часто хотим странного и непоследовательны в своих хотелках. "Вымя есть, а хересу нет!" (С)
5. Да, мы считаем, что все рабочие и дизайнеры должны нормально зарабатывать и очень спокойно относимся к тому, что дизайнеры и прораб получают бонусы с закупок.
6. Да, я экономлю на кабачках и маникюре, но мы спокойно тратим деньги на ремонт. Но не всегда спокойно. Например, часть мебели неоправданно дорогая с НАШЕЙ точки зрения, другая - неоправданно дорогая с точки зрения фанклуба, третья - копеечная и нищебродская с обеих точек зрения )))) И со всех точек зрения - есть неровности и щели. На которые С НАШЕЙ точки зрения плевать, но в это никак не может поверить часть комментаторов.
Ну вот кактотаг.
Почему будет? Там вытяжной вентилятор + это же не ванная.
Плитку точно не будем делать,
Если с обоями будет что-то не так - просто покрасим.
Не, плесень не нравится )) я ж сказала - во-первых, там вытяжка, во-вторых, там нет ванны, в-третьих - есличо, покрасим )))
Почему плесень? У моего папаши 100500 лет обои в санузле, никогда там плесени не было. Да и у Инги 100% нормальная сантехразводка, откуда плесень в санузле? Мне тоже не нравится вариант обоев, но не с точки зрения наличия или отсутствия плесени.
У мамы моей обои в туалете последние 15 лет (так ей захотелось), никакой плесени нет. В ванной да, плитка
Эммммм..... Я этот дом объявляла шикарным?
Он бесконечно мил, как мила и русская изба моей бабушки. Это в чистом виде этнография. Плюс гектар земли, тишина, лошадки, шезлонги, гамаки и прочие прелести загородной жизни. Этот дом настоящий, в нем 200 лет жили люди, он наполнен историей и миллионом деталей.
Таких настоящих огромное количество и в России. Просто вы как образец стиля его выставили. Так-то у меня тоже бабушка в деревне, 20 соток, тишина, крыжовник. Прялка на чердаке.
Я его выставила как пример использования обоев в ванных комнатах ))
У моей бабушки (ныне покойной), к сожалению, давно уже белые пластиковые окна в бревенчатом доме со ставнями, что выглядит кошмарно. Ну и обоев отродясь не было, бабушка все белила, поэтому привести в пример в данной ветке будет сложновато ))
Да почему именно в деревнях? В дореволюционных квартира имперского Петербурга в туалетах делали окрашивание, это я точно знаю. Это мало чем отчитается от обоев.
Потому что тоже экономили, плитка, изразцы были дорогими! Ими, например, украшали печку. Это очень важное место в доме, а на сортире экономили как и Инга!
Ну, на изразцах экономили даже в царских дворцах. Это только Александр Меншиков наворовал столько, что его дворец на Васильевском острове был отделан изразцами от и до )))
Что касается вот этих фахверковых домов, то стены у них исключительно кривые, и выравнивать их под плитку - ну натурально убиться можно.
Это же касается и русских бревенчатых и прочих изб. Потому и белили эти кривые стены, что больше с ними ничего было нельзя сделать.
Мне даже интересно, где вы видите здесь смесь? Тут только обои, они ни с чем не смешаны )))
Вот такой дом, интерьер восстанавливали максимально близко по фотографиям.
ну это все можно менять, речь-то про обои сейчас, а они вполне в кассу по стилю. Такая деревенская милота.
Хреновая из вас Ванга, раковина-тюльпан, не в шизду, не в красную армию. Трубы по стенам. Увидев такое в российских домах та же Долина плеваться будет, а Нормандия это другое.
Тетка выше написала грубо, конечно.
Меня бы потянуло все поверхности по металл привести к общему знаменателю. Там везде краны простые хромовые, а светильники нет.
Я бы для рентала разорилась на краны под антураж.
Перекладина для шторы опять же, и сама штора.
Хорошая перекладина дугой стоит подороже, конечно.
Штора и коврики - то, что дешево и сердито отводит глаза и создает настроение.
Короче - все недорого в основном.
Раковины точно не под антураж. Там нужен другой пьедестал.
Люди уже разорились на новую соломенную крышу. В этом году сделана крыша, цена 40 000 евро.
Окупят крышу - думаю, сделают и что-то еще. Это уже все ерунда, это ж не для постоянной аренды дом, а на несколько дней отпускных.
Я привела в пример именно обои, они тут очень мило смотрятся.
Кстати, соломенная крыша - это такая крутая тема!
По идее под ними не просто приятно жить, но они и держатся лет 50.
Мы в бруклинском доме делали асфальтовую стандартную новую крышу в 2011 году. Плоская. И уже пора :(
Хозяин сказал, срок службы 25-30 лет.
Плоская кровля в холодном климате - это куча геморроя, кмк. Вода все равно не уходит нормально. У вас ведь снег, наверное, ложится?
Мы сдуру сделали плоскую кровлю у зимней отапливаемой веранды, это единственная морока в нашем доме. Все остальное по уму получилось, а с этой крышей.. да, смотрится круто, но и только.
У нас весь город с такими крышами на подобных домах.
Естественно, там небольшой скат в одну сторону, и в конце стоит такая прикрытая сеткой большая полутруба, тоже с небольшим скатом, который заканчивается вертикальной ливневкой.
Это просто данность, что такие крыши перестилаются раз в 15 лет.
Кстати, на доме, в котором мы живем, совсем другая крыша.
Скатная. Была новой практически в 2019, когда покупали. Уже в одном месте заметили протечку.
Ага, мое чувство прекрасного полностью удовлетворено. За французами много грехов, но после испанского регионального колхоза жутчайшего я во Франции прям-таки на реабилитации.
Другой вопрос, что жить в таких домиках на постоянку абсолютно нереально. Внутри темно (окна маленькие совсем), крутая лестница на второй этаж (спасибо не винтовая, мы до этого в Онфлере неделю ноги ломали в другом доме), слышимость полная, перекрытия второго этажа скрипят до невозможности, ночью любой поход в туалет разбудит всех.. Зато прохладно (+17 на моем градуснике) и приятно-влажно (70%), потому и любим летом уезжать в Нормандию.
Какая же вы смешная! Столько гонора и какого-то местечкового апломба! Никакого представления о нормальных домах, местах. Лизон номер два.
Какого "местечкового" апломба? Вы о каком "местечке" пишете? ))))) Я живу примерно везде )))
Этот фахверковый дом - НЕ МОЙ. Мы его сняли на неделю. Что конкретно вам кажется апломбом? Слова о том, что дом темный, и в нем жить нельзя на постоянке? Ну да, он не соответствует современным нормам инсоляции, а еще в нем холодно и сыро даже в июле, прекрасное место, чтобы заработать туберкулез при постоянном проживании ))
Это мое личное. Я большой любитель и ценитель истории во всех ее проявлениях. И я уважаю людей (французов в данном случае), которые берегут историю и не уродуют ее пластиковыми окнами или профлистом.
законодательно запрещают, вот и не "уродуют". Или спецом держат аутентичный вид, чтобы зарабатывать на сдаче любителям.
иначе собственнику кроме кучи неудобств ничего с этого нет.
Я видела тут уже дополна фахверка со стеклопакетами. Спасибо, они деревянные, а не пластиковые. И не белые.
чем дальше читаю, тем сильней ощущение, что у одних вкус и мера есть (Светлана), у др нет. Мебель Инги убила, хотя в ее стиле и что кривая-косая с полосами - жутко же, но кому-то нравится. Все-таки как дорвались, сто лет без ремонта, а потом дорвались все и сразу. И дизайнеры тоже лишь бы бабла срубить. Жуть. Если бы просто дорогие полы и белые стены и простые раздвижные перегородки, а не эта кривизна - было бы куда приятней глазу и стильно.
Вы ща описали кошмар моей жизни )))) НИЗАЧТО )))
и слава Богу, что у меня нет ТАКОГО вкуса ))))))))
... каааак же у нас красиво и удобно ))))
... по полчаса не можем из квартиры уйти ))))))))
... и да, в Светланином, Татусином, Лилином интерьере - я бы и дня не выжила.
... а они - в моем.
... и это совершенно нормально )))))
Что в слове "мы" Вам непонятно? :)))
Кстати, дочке делаем унылую бежевосерь ))) по ее личной просьбе )))
Правда ручки она попросила - котики )))
Маленькие помещения трудней делать и труднее жить.
Ну и у инги первый ремонт. Я вот смотрю на него и вспоминаю с ностальгией свой первый. Буйство цветов, плитки. Мраморный пол в длинном коридоре с подсветкой. Безумная ниша в спальне с картиной от любимого художника 😆 Реально буйство всего..
Это происходит с каждым. Татуся вспоминала, как делала венге (и я тоже!)
Ну это весело и такой этап в жизни )
Да нет у меня "буйства цветов" ))) ну правда - нет.
Ну, кроме сортирки ))) там дааааа )))
У меня квартира - хромофаг. Она пожирает ненасытно ВСЕ цвета... делая из нежнозеленого серый... приглушая всё и вся.
Она просто НЕ белая-бежевая-серая. Там просто есть цвет.
И мы просто повторяем те цвета, что и были... просто благороднее, выдержаннее, глубже.
У меня была зеленая кухня, розовые сортирка и ванная.... остальные помещения - пыльно-желтые...
И нет, мы НЕ собираемся ничего потом больше менять. Никогда ))) Ну, разве что что-то развалится и вконец достанет.
Там сейчас устранено всё, что меня долбало:
- в коридоре больше не будет лютого бардака, ибо вместо открытой вешалки там закрытый шкаф
- трамвай-гостиная превратилась в квадрат
- 30 удлиннителей превратились в считанные тройники (если вообще будут)
- отсутствие потолочных светильников резко подняло потолки
- полное отсутствие углов дало мягкость и тактильность
- очень удобная душевая
- офигенский заливающий свет....
- офигенская фактура стен
... ну реально пофиг на щели ))) Кстати, глянула. Дизайнеры в портфолио ни разу их не стесняются )))
Реально, квартира полностью скомплектуется только где-то через год... не думаю, что раньше.
Конечно нет. У вас буйство идей на квадратный сантиметр. И я не говорю, что это плохо. Это отличный этап в жизни. Называется первый ремонт )
Ну вы забываете, что у Инги первый ремонт и с дизайнером. У вас скорее всего был первый ремонт без дизайнера. Поэтому тут нельзя сравнивать два ремонта, мне кажется. У Инги ремонт профессиональный и ни в какое сравнение не идет с ремонтами в 90-2000х годах. Да и вообще, я думаю, что тут народ больше охреневает не от дизайна ее ремонта, а от того, сколько бабла вложено в старый жилой фонд, а на выходе получены щели, перекосы, обои в туалете, скрипящий паркет и т.д. Народ, и я в том числе, не понимает, зачем в эту квартиру покупать шкаф за 500 тыс… Ну переделали бы себе электрику, переклеили бы обойки, купили мебель в Хофе и жили бы дальше припеваючи…
Так что дело тут совершенно не в стиле. А в качестве исполнения. Например, ваши фото мне не близки по стилю, но они очень красивые! И вот на них смотришь и сразу признаешь, что это очень качественно и дорого. А вот у Инги так не выглядит ремонт. Ну не возможно из говна сделать конфетку! Низкие потолки никуда не делись, туалет и ванная не увеличились, на кухню морозильник все равно не поместился… Сама живу в такой же убогой девятиэтажке( Знаю все прелести таких квартир.
В общем, хочу сказать, что стиль ремонта может быть разный, хоть классика, хоть лофт, хоть хай-тек. Но основа для ремонта должна быть хорошая! Если ее нет, то и получается такое, как у Инги за огромные деньги.
Выглядит, конечно ))) тут кто что видит )) кто щели, а кто - как работает пространство, как комфортен свет для глаз ))) насколько удобно жить там ИМЕННО НАМ, с нашими привычками и заморочками
И да, Вы НИКАК не можете услышать, что нам РЕАЛЬНО НРАВИТСЯ жить ИМЕННО В НАШЕМ ДОМЕ.
... а скрип пола - для меня часть уюта )))
... а цена ремонта - это наша плата за наш комфорт. Цена, которую мы ГОТОВЫ заплатить.
))))
Инга, да я уже давно поняла ваш настрой, не нужно все время повторять, что вам все нравится. Уже все давно это уяснили. Лично я к вам даже уже и не лезу с разговорами) Ответила вот Светлане про свое видение этой ситуации…
Но раз уж вы не спите, то может поделитесь, чем все-таки у вас ограничено место под шкафом, чтобы обувь глубоко не залезала под шкаф?) Вам же так хочется это рассказать уже несколько дней;), а никто не спрашивает, а только пытаются убедить вас в том, что обувь будет забиваться глубоко… Зная вас, думаю, что там какое-то гениально-простое решение) Так какое же?? Какая-то перегородка? Утолите мое любопытство, пожалуйста)
Ну вот видите, одно решение Вы уже нашли - перегородка.
Но нет, в моем случае это не будет перегородкой.
И нет, мне ПОДЕЛИТЬСЯ НЕ хочется.
Мне оооочень забавно, как одна за другой, евы предрекают мне страшные муки )))))
Подумайте еще. Я ж говорю - придумаете ЕЩЕ несколько вариантов. И какая разница, какой будет мой? :))) Если мы ПОДУМАЛИ о том, как сделать так, чтобы обувь НЕ убегала под шкаф глубиной 75 см )))
Блин, ну кроме ограничивающей глубину перегородки мне на ум ничего не приходит… Но вообще то я только в страшном сне могла представить себе, что буду думать про чужую обувь под шкафом) Но вы создали такую интригу, что пришлось думать и придумать перегородку) Оказывается, мимо… Ладно, подожду когда вы все-таки откроете эту тайну.
... просто долговременное хранилище того, что доставаться будет раз в несколько лет ))))
в пластиковых коробках.
При глубине шкафа в этом месте в 75 см - туда отлично встанут короба глубиной 40 см.
Вот до них надо будет нырять... и хрен бы с ними... там будет то, что семья не дает выкинуть ))) но и не пользуется НИКОГДА )))))
... и при этом ограничат глубину норы )))
ничего красивого я у вас ни разу не видал, кроме коллажей и референсов, реальность разочаровывает. Красота остается на картинке.
именно так я и делаю)) А вы здесь, чтобы людям указывать где и что им смотреть? ну так мы здесь все взрослые разберемся самостоятельно.
Так и вы можете не читать, что другим не нравится то, что ваяет в коллажах Светлана.
и вы не расстраивайтесь, до дизайнера вам очень далеко)) хотя, именно такую репутацию вы здесь пытаетесь выстроить.
как скажете.
не зубудьте перед зеркалом мантру повторить вашу любимую "ядезигнервсеяевы", а то у вас несварение начинается, когда не признают ваш великий вкус.
Мне кажется в предыдущих топах она показывала реальную ванную и спальню… И хотя мне и ближе стиль ремонта у Татуси, я не отрицаю того факта, что у Светланы очень красиво!
Ну если там будет такой санузел, как у нее на коллаже, то это уже не дача, а как минимум коттедж) Хотя и другие санузлы у нее прекрасные, на обычных дачах таких не бывает
Согласна на сто процентов, кроме первого пункта. Так и будет лютый барак в прихожей. Зачем при наличии большого шкафа (и очень дорогово) делать открытую вешалку? Где будет висеть почти вся вашая сезонная одежда, валяться обувь.
Дай пять, друг! Подсветка, которую я сама(!) штробила в стене коридора! И пользовались ей раза три. Квадратный орнамент в коридоре, черно-белая мебель и вместо штор -полотна на пластинах в японском стиле! Еееех! И горизонтальный "кабанчик" в санузел с раскладкой плитка вертикаль-горизонталь в одном помещении.
А ещё был натяжной потолок с облаками и небом над кроватью! И желто-белая ванная комната. Зашёл и проснулся!😂😂😂
Блиииин! У меня болотно зеленая спальня, синий круг над кроватью с точками лампочками (типа небо)) и неоновая желтая ниша в голове кровати, а там... Я заказала копию одной картины, которая мне очень нравилась. А копия вышла.. Счас сфоткаю покажу :chr3
Блин, вот о чем я думала, не понимаю..
Прохожие так нашу люстру безумную разглядывают. Потом через знакомых передают, что если надумаем продать, чтоб обращались. Я в шоке, если честно))
Увидела.
Так, навскидку тысячи две с половиной - три долларов.
Потом поищу.
Красивая очень, если в комнату подпустить что-то контрастом из Татусиного репертуара. И шторы не такие - облегчить бы.
Не продешевите!
Сейчас искать некогда,
Если не забуду, поищу аналоги.
Это fbai или китайский fbai, ей тыща лет. Это мужнина люстра и мужнины шторы, он их любит. У нас квартира не про дизайн. Люстра очень большая, кстати.
О! Золотые слова! "Квартира не про дизайн" )))
Может быть, Ваше сердце успокоится, что у нас тоже?: ))) не смотря на присутствие дизайнеров и ценник? :)))
Нихрена. Мой ремонт стоил 10, ну 20 тыщ баксов 20 лет назад, какой смысл оценивать его качество исполнения. Стены визуально ровные, но не совсем. Все остальное такое же. Надо было быстро переехать. Реально классная только кухня, но тоже косяков на пол ремонта. Там не доделали, сям забили. У вас две девушки дизайнерки осуществляли авторский надзор. За чем они надзирали, если мебель не встала и дерево обрезано? Вы даже не пнули замерщика шкафа за 500 тыщ, чтоб переделали. А ведь щель - это его косяк. Я просто пытаюсь понять, за что вы им платили? За планировку? Ну да, только тут и не накосячили.
Мебель встала так, как хотели ))) Дерево такое, как планировали )))
Щель - это НЕ косяк )))
Платила за то, чтобы жить в месте, каждая деталь которого радует ))))))))) и нипадохнуть в процессе )))
И я не понимаю, почему Вы СОБСТВЕННЫЕ ФЕТИШИ выдаете за ЕДИНСТВЕННЫЕ критерии качества )))))))
У вас отличный ремонт, правда, необыкновенный, но зря вы не выровняли пол и стены. Это не фетиш - это база для нормального ремонта.
Просто для эксперимента пригласите представителя фирмы, которая делала шкаф, и спросите у него какая сумма компенсации кажется ему адекватной или он готов все переделать? Хоть денег с них стрясете, это уже плюс. Если щель не критична.
У вас чудесный ремонт, но то, что вы не стали выравнивать потолки, стены и пол очень его портит. Просто охреневаешь, когда видишь эти косые шкафы.
Ванна в тренде, у Косты такого типа была. Просто тогда были другие тренды)) Сейчас рейки и плитка под бетон.
так модно было) хотя мне и сейчас ваши фотки вполне себе, кроме пола в ванной. А так, в нашем климате солнечно-весело)
Я в те годы тоже ремонтировалась, нутром чуяла, не стала городить гипсокартонные потолки. Просто ровная штукатурка и белая краска. Так с тех пор только покрасить при очередной косметике требуется.
Не с каждым, честно честно. Мой первый ремонт и сейчас не устарел, но там дубовый паркет и кухня из березы была. Всё такое вне времени. А это было начало нулевых.
Ну и тут такой ремонт вневременной, там нет примет времени, которые лично я недолюбливаю.
То есть мне кажется сравнение некорректным.
У меня тоже была кухня из карельской березы (эльт, если правильно помню) и дубовый паркет. Но также был и глянцевый натяжной потолок в ванной. 5-6 разных размеров и выкладок плитки в ванной. Ну про спальню написала выше 😅 А так да, дубовый паркет в наличии ))
Не не,у меня и в начале нулевых был штукатуркнный потолок, а это кирпичная новостройка была и мне все грозили трещинами. Но лучше трещина,чем натяжной потолок. И никаких ста сортов плитки, это и тогда, и сейчас, за исключением всякого эксклюзива, мне казалось ужасом.
Но я росла в хороших условиях, мама регулярно делала косметику в квартире, у нас была новая мебель и все такое. То есть я ни до чего не дорвалась.
Респект вам значит. Я девочка с московских окраин. Вышла из квартиры в коврах и хрусталях и дорвалась ))
Да я не ради респекта пишу. Я о том, что ваш первый ремонт и первый ремонт Инги нельзя сравнивать. Тут все сделано вне времени, нечему устаревать. И дизайнер выбран по себе. То есть ваши первые ошибки не равно ошибки у остальных. Нет тут места некой снисходительности из серии "все мы проходили первые ремонты".
Дизайнеры ингины мне не нравятся. Есть вещи, которые нельзя игнорировать. Например, ровные стены. Они проигнорировали. И очень многое поэтому выглядит так себе. Я понимаю, Инга воюет за сантиметры, но это неадекватно - не объяснить заказчику правила игры в ремонт.
На колу мочало, начинай сначала. Я уж и проекты из портфолио выложила.
С щелямЕ и прочими "недостатками" с Вашей точки зрения.
И БЕЗ щелей тоже есть.
"Правила" подбираются под объект, заказчика и цели.
И Вы всё время говорите, что мне кто-то что-то не объяснил... Мне. Всё. Объяснили. И. Мы. Совместно. Приняли. Именно. Эти. Решения.
Ну как иначе-то сказать-то? :)))
Я вам про это больше не пишу, я написала другой даме. Идти на поводу чудачеств заказчика в ключевых моментах ремонта непрофессионально.
Объекты в портфолио с щелями Вас не смущают? ))) То, что они НЕ стесняются этих щелей? :)))
Вообще, офигеть.
Вот Татуся несколько дней говорила, что выставлять двери так, как выставили дизайнеры, непрофессионально... И плевать, что профи так не считают.
Вы заладили про выравнивание... а профи так не считают ))))
Впрочем, Вы и про плинтус мой мне рассказывали, что он какой-то не такой ))))
а как же им быть, дизайнерам, в конкретной ситуации? Заказчик хочет так. Точка. Отказываться от работы?
По стенам не знаю, но с потолком Ингу понимаю и сделала бы также. Нежели жрать минимум 5 см от и так низкого потолка.
По подвижке стен на пару см, опять же, желание заказчика. Невпихуемое они впихнули. Душ из ничего скроили. Места для хранения впихнули. Прихожую подрасширили, чтобы провернуться можно было.
15. Пятнадцать! сантиметров. Плиты пола и потолка расходятся углом.
И толку-то, если выровнять потолок? Тогда менять пол. А пол менять мы НЕ хотели и очень счастливы, что не стали.
Кривое ВСЁ. Каждая балка.
Равнять это всё? Вкачивать туда тонны материала и труда? Да за каким фигом? :)))
Эта квартира НЕ ПОДРАЗУМЕВАЕТ ровных поверхностей, отсутствия щелей и какой-то там идеальности... такой задачи не было. И действительно, ставить такую задачу в таком пространстве - идиотизм.
Глядя на ингин ремонт, прихожу к выводу, что делать надо все по правилам, начиная со стяжки. А когда начинаются компромиссы, то там, то сям, получается, что что-то криво получается. В современных ремонтах со стенами под покраску и минимализмом вся фишка в правильной геометрии и ровных поверхностях.
НЕТ такой фишки в современных ремонтах.
В ремонтах, которые нравятся ВАМ - возможно и так. Но Вам нравится только ЧАСТЬ современных ремонтов.
Остальные при этом не перестают быть современными
в домах ее серии потолки 250 см. В ее квартите перепад 15 см. Ну допустим, усредним, и при хорошем раскладе, если ровнять потолок в горизонталь, потеряли бы около 8 см. Ну куда там... и так низко.
я бы попыталась обыграть перекос потолка косыми рандомными фрезеровками на фасадах, чтобы уж вообще было не понятно где какой уклон
примерно так, но более рандомно
эээ.. а чем это поможет? треугольный плинтус делать? и допустим, над шкафом потолок выровнять, дальше что? ступенька?
Вы же понимаете, что с эмоциональной точки зрения это АНТИ наше )) Вместо плавных линий - острые углы.
Кстати, то, что у Вас на рисунке - эмаль с фрезеровкой - дает примерно +100 тыс к цене мебелины и + 2 недели к срокам изготовления.
Дизайнеры должны объяснить важность момента. Дизайн невозможен без ровных стен, как минимум, мебель не встает. И ведь Инга не из экономии их не выравнивала как мы, к примеру, когда-то.
Это они забили на важное, я зареклась уже обсуждать это с вами. Если вам пофиг на внешний вид своей квартиры, можете забить. Так и сказали?
Ну конечно из экономии! Ремонт очень дорогой плюс дизайнер. На все не хватило. И думаю то и обои в туалете - тоже экономия. А если нет и реально Инга не помещается в туалет из-за плитки, то таких дизйнеров надо гнать из профессии.
Плитка стоит копейки по сравнению со шкафом и кухней. Гнать их надо по другой причине, хотя единственный туалет, куда с трудом влезает член семьи - это проблема. Но я не верю в это.
слушайте, все мы из РФ, все жили в тесных маленьких квартирах. и никакого буйства первого или второго или 30 лет назад ремонта не было у нас. и бредовых идей. и цвет стен во всей квартире один, кроме детской. и он нейтральный. и никаких обойчиков не было. натяжными потолками ни нарадуюсь, сколько нас заливали сверху. и все очень выверено, по журналам о стиле. у всех подруг так, даже люстры одинаковые. Плитка в каждом су, потому что практично и ежедневно пользуются дети, не собаки. Венге не было никогда, у родителей темного шкафа хватило, но даже тот темный шкаф мне приятней того, что на картинках. не знаю. лишь бы в радость, конечно. но халин двор мне приятней, мое имхо.
"по журналам о стиле, у всех подруг так, даже люстры одинаковые" - ААААААА ))) кошмар моей жизни ))))))))))
В начале/середине 90-х работала в администрации, нам управляющая типа ЖКО (большой человек) обои подгоняла-было так-вам какие для кухни или для спальни. Кухня принт с едой/чайниками, спальня -цветочки. И никаких мук выбора! Прихожая если-строго лианы.
шили-вязали же все, кроме самых рукожопых, и отоваривающихся в 200-й секции. И как-то одинаковые юбки зашкваром не воспринимались.
Не соглашусь насчет каждого. В первом нашем ремонте (в нашей первой квартире) сразу были белые крашеные стены, серые диваны, однотонные блеклые шторы (благородный плотный материал до сих пор как новый, я нашила диванных подушек) и никакого безумия.
Из излишеств была ванна с гидромассажем (пользовались им раза три), но мы купали в ней детей, она была нужна. Когда дети выросли, поменяли на душевую кабину.
Кстати про буйство цветов и идей на квадратный метр ))) Вот интерьер от моих дизайнеров ))
В этой квартире я была и знакома с владельцами.
Скажем так, это ту мач даже для меня. Особенно кухня )))
А они живут и наслаждаются ))) часами рассказывают о каждой ручке и табуретке.
Но! Именно с этого проекта я на них и запала. Поняв, что они НЕ про ровные стены, а про другое )))
https://disk.yandex.ru/d/M2hJuj_7mX1TbA/2021%20%D0%9A%D0%B2%D0%B0%D1%80%D1%82%D0%B8%D1%80%D0%B0%20%D0%BD%D0%B0%20%D0%9A%D0%A0%D0%90%D0%92%D0%A7%D0%95%D0%9D%D0%9A%D0%9E/%D0%A4%D0%9E%D0%A2%D0%9E/Full
в очень ламповой стилистике работают - перегружено и нарочито (я седня стилист-дизайнер)
не приемлю чёрное и оранжевое в интерьере
Чисто на мой вкус, кроме кухни - прекрасно всё! Кухня для меня не сложилась, чисто какофония цвета, даже скорее выбранных оттенков.
Лавка мечта, я б от такой не отказалась.
Там про лавку отдельная цыганочка с выходом )))
Это какой-то скандинавский винтаж, подобранный туда с третьего раза.
А в девичьей детской (которая за шторкой) обойки - герои каких-то культовых скандинавских сказок ))
Там реально КАЖДАЯ фигулька что-то значит для хозяев... и Франция, где много лет работал хозяин, на одной и той же стене соседствует с Узбекистаном, где жили предки по какой-то 1/8 ))) а кронштейны с родины хозяйки - с бюстом Маяковского, потому что бюста Пуанкаре они не нашли )))
А покажите, что дизайнеры выложили из вашего ремонта. Может действительно стоит помотреть глазами другого человека
По факту это прям классно-классно )) И снаружи, и изнутри детской - там получается такой уютный уголочек с креслом )))
Закругленные углы напоминают Норы хоббитов)))
Психушку мне напоминает интерьер Татуси , при всем уважении)))
Бесконечно белые поверхности и отсутствует на них вещей).
Но это только одна из ее квартир. В испанском доме на мой взгляд супер все)
Эх, матушка, жаль, что интерьер из психушки или от уборщицы с ОКР -пару раз в год в доме🤣 задрали игрушки везде, предметы на обеденном столе, домики с пледами из стульев, велики-машинки и обувь всюду))) А фото без всего этого я просто обожаю))) И если вдруг снова чистый интерьер, то быстро делаю фотографии, чтобы напоминать окружающим, что можно и нужно так. Но нужно только мне)
Татуся , это без обид)))
Мне запомнилась именно белая квартира с красными эстампами-акцентами на стенах).
Конечно, это мои "тараканы" , но я боюсь)))) белого цвета)))
Стойкая ассоциация "белый" - больница, болезни ,,, смерть... вот как то так(((
И я люблю "уютную захламлённость" , пустые поверхности у меня вызывают неприятные ассоциации тоже (((( и книги очень люблю, поэтому мне эта квартира ( выше) очень зашла))))
Аааа! Поняла! Это квартира, ремонт от 2017 года. Да,, там прям бело-серо-красное.
Для меня белое - это точно чистое, открытое, расширяющее пространство. Кухня в квартире окнами на северо-восток, поэтому идея была сделать её максимально светлой. Остальные помещения не столь контрастны.
Да какие обиды! Хорошо сидим!😘


Да, именно это квартира.
Для того времени она ОЧЕНЬ стильная для того времени и наверное сейчас не утратила актуальность.
Но как жить ,когда кругом "все белое"?)))))))
Но с кровавыми "прожилками". И нет - это не стильная квартира, поскольку ее "стильность" перешла уже в кич.
По мне, там дело не в белом, а в красном. Белое можно было бы адаптировать, разбавив успокаивающим приглушенным травяным или типа того. И теплое освещение.
Ребята склонны очень перегружать. Они не понимают, что это будет не музей, а жилое пространство. И они уже набили его так, что добавление реальных вещей стало невозможным без разрушения всей задумки.
На эту кухню ничего не поставить, на рабочий стол не добавить и тыды.
А что - очень хорошо. Дляменя ярковато, но у меня всегда в голове насколько это приемлемо на продажу или на сдачу за хорошие деньги. А так - очень славно.
Я бы больше мест для хранения выкроила из этого пространства.
Но я бы и из вашего выжала больше.
Не трогая стилистику.
Там не просто много мест для хранения, там их ДО ХРЕНА )))
Просто они не бросаются в глаза
... как и у меня. У меня вообще квартира из шкафов состоит ))))
Планировки они делают просто супер.
Но тут и проблем особых нет. У вас они выжали по максимуму.
Я присматриваю квартирушку в старом фонде (австрийский альт бау) Там проблема в том, что кухни и ванные достраивались намного позже самого дома. Частенько туалеты вообще вне квартиры находятся (но такой вариант я не рассматриваю))
Так вот в таких квартирах кухня всегда находится у входной двери. Входишь в кухню, и через нее входишь в комнату/ы ) и вот мне надо будет что-то с этим придумать. Сама я никак не могу. Уже пыталась )
Ээээ ))) ну вот КАК Вы так можете говорить? :)) когда не знаете ни состав семьи, ни привычки, ни стиль их жЫзни? :)))
Так я исключительно под свои представления о том, как бы я использовала это пространство максимально эффективно, плюс визуально просторно.
А нарисуйте, как бы вы сделали? Очень как раз интересная тема. Только с учетом состава семьи и пожеланий заказчика
да не срочно:)
Но интересно, да
я вот скоро (ага, через пол года) планирую обратиться как раз к Ингиным дизайнерам (давно решила) и в первую очередь из-за их таланта в планировках
И как раз сижу, кручу сама планировки своей квартиры, чтобы понять, чего можно от нее ждать и как объяснить дизайнерам, что мне нужно
Я бы и свою квартиру с удовольствием обсудила на форуме:) Но начать можно и с этой "для затравки"
Дома нарисую, если успею.
Идея в том, что они все равно трогали несущую.
Видно по плану.
Неизвестно, как они ее укрепляли, но если бы вместо угла кухни была колонна, спрятанная в шкафы от пола до потолка, со стороны кухни частично закрытые, со стороны примыкающей комнаты - книжные.
Примыкающая комната - гостиная, отьесть часть поперечной спальни, вместо стен несущие колонны, спрятанные в узкие шкафы. Такие шкафы реально поднимут потолок, сейчас он кажется низковат. Получается большое открытое пространство, не нужно много проходов, реальная гардеробная у бОльшей спальни, большой шкаф для верхней одежды…
Нет, несущие они не трогали, не знаю, почему вы так решили, что вам "видно по плану"
Вот вам план, если что
https://kvartira.mirtesen.ru/blog/43259254762/Takogo-vyi-esche-ne-videli-Ispravili-nezakonnuyu-planirovku-i-so
непонятно и вот это: вместо угла кухни была колонна. КАК ЭТО? Я понимаю, что у вас картинка в голове, но передать словами вы ее не смогли совсем. Про спальни совсем непонятно, если не нарисуете.
Много неплохих уголков. Но проект не цельный, а не пришей кобыле хвост. Но да. Не самый плохой.
Меня лично очень мучает теплота обеденной зоны с черно-белым фартуком кухни. Так и хочется ободрать.
Ну вот видите - Вы не видите ))) А она есть, и не одна
А где у меня, простите, "современность"? :)))
А ничо, что моя квартира пока вообще не декорирована? :))))))
Люди не просто живут, у них еще и детей трое )))))
Мебель дсп-ная, фанера с дырками на стенах и прочие прелести в виде бусинок на плитке. Вы сравниваете именно дизайнерский замысел и воплощение, с замыслом дизайнеров и вашими личными художеством. Для меня аналог вашего ремонта это машины с меховыми чехлами и меховая обмотка для руля.
Что не так с меховыми чехлами? :))) Что не так с мебелью в эмали за полляма? :)))
Что не так с натуральной фанерой? :)))
Чем Вам не угодили бусинки?
В обсуждаемой квартире до хрена икеи, ДСП и прочих радостей ))))))
я бы в поднадзорную палату попала от жизни в таком) Сплошные пылесборники, это там еще нет ни одной вещи, которые обычно у людей разложены в быту. Красная спальня, кухня вырвиглаз, все в рябушку-крапушку-картиночку, ябысдох)
а ваша цветовая гамма как раз спокойная и уютная. Кривизну потолков не исправить, не потеряв больше приобретенного, поэтому как есть. А щель между шкафом и стеной, ну такое.... глаз очень режет. И там как раз можно было бы щель убрать, видимо вам уже к этому моменту все надоело и хочется закруглиться.
Да нельзя там убрать щели... ну просто поверьте.
Точнее, можно - убрав столько пространства, сколько мы отдавать не готовы ))
А про мое "спокойствие"... это ж я еще три мильона статуэток и картинок не зафигачила в правильные места ))))
У заборчика все прижилось. Первогодка the fairy сразу радует. На ее же белом кустике распустилась первая розочка.
Там два розовых и два белых кустика. Смысл в том, чтобы остальной микс проглядывал среди роз. 
Девочки! Не убедили с обоями в туалете! Пусть плесени не будет, но это просто не гигиенично! Туалет маленький, там и капнуть кое-чем может и тд. Стены надо мыть! Все эти западные образцы - от экономии. Ремонты от Ингиных дизайнеров очень понравились. Но кроме красоты должны быть учтены не менее важные вещи, практичность, гигиеничность. Обои - в сан комнатах - всегда экономия.
Не убедили все равно. Вы сами пишите, что это последний ремонт, с обоями так не выйдет. Туалет небольшой, сделайте плитку и забудьте.
А в коридор вы влезаете, если бы он был уже на 1,5 см? Вот не дай бог что, понадобится вам посторонняя помощь, как вас туда водить и вытаскивать оттуда?
Удивляет, что вам за…ли мозг цветовыми решениями, фактурами и прочим, а архитектурно-инженерную часть сделали на отвали. Еще неизвестно, как поведет себя самодельная душевая
Удивляет, что Вы не понимаете, что НИКТО мне ничего не за..рал )))))))
Вот что сделали ТОЧНО КЛАССНО, так это инженерку )))
Симпатично ,но обои надо будет периодически переклеивать.
И Инга наверное будет тоже переклеивать и наверное это к лучшему) Эти ужасные "муми тролли" быстро стопи..дят)))))
Это самое главное!
Давайте, я покажу свою спальню, меня вообще с говном сьедят, но вот запали мне эти айкиевские шкафчики! Видела как-то, как люди их используют нетрадиционно, не как обувные, и пропала :)
Прямо арт обьект, куда влазят все мелкие бельевые вещи типа носков, колготок, и нижнего белья.
Там небольшой проход, пыль внизу не собирается.
Я прямо часто смотрю, а классно встали! Думала, надоест - невелика беда, перенесу куда-нибудь.
Но прямо реально мне хорошо от их вида. А это простые айкиевские пластиковые навесные коробки для обуви цена копейка! :)
Идея не моя, стырила где-то, но главное -мне нравится.
Так и ваши обои.
Главное - вам нравится.
Такое дорогого стоит.
Разонравится - это не стены двигать.
Я бы попробовала.
У вас же покраска на стенах прихожей?
Вы приобретаете небольшие дырки, которые легко замазать.
И эти ящики - милое дело.
Сняли, и повесили потом куда угодно! Хоть на дачу в квартиру, хоть на кухне - там, где мало места.
Для пластиковых пакетов и многоразовых сумок, например.
Они полностью снимаютсяодним щелчком и моются.
И так же легко выбрасываются, если сломаются - они действительно дешевые.
Попробуйте!
Будет от них тошнить - уберете и переиспользуете где-нибудь!
Прелесть.
Мне много что нравится у Икеи, в части планирования пространства и дизайна они прям молодцы. Качество иногда подводит, есть за ними грех, стараются подешевле.
Это искупается ценой.
Кстати, там тумбочка прикроватная виднеется из елки - это из старой айкиевской коллекции, наша «вторая» спальня, покупали лет 25 назад :)
Называется - густавианская. Теперь предмет коллекционный, кто б знал!
У меня, сейчас подумала, в спальне вообще какой-то фестиваль айкии - эти пластиковые ящики, две тумбочки…
По-моему, еще только в комнате дочери есть билли несколько шкафов вдоль одной стены. И один шкаф платяной в еще одной спальне, купленный срочно. Вроде все служит.
Он - покрашен влагоустойчивой краской. Но расскажите сначала пожалуйста :), как лучше сделать ? Нам сейчас полностью перестраивать квартиру.
Видимо поверхность, которую красили не очень отчистили. Два варианта - счищать все до основания, грунтовать и красить. Или зашить все влагостойким гипсокартоном, потом грунтовать и красить..
Меня удивляет вся эта тема плесени в ванной. У меня 4 объекта недвиги и суммарно 6 ванных комнат, и за 25 лет я ни разу нигде не видела плесени. Были какие-то потемнения в швах плитки непосредственно там, куда льет вода в душевой, и моя домработница устраняла это пароочистителем, но до состояния "ах, плесень" это никогда не доходило.
зачем загонять проблему под плинтус, то бишь, натяжной потолок? Ну будет плесень не видно, но она же будет...
Мы меняли уже эти натяжные потолки неоднократно, ничего под ними нет!
Как вообще там может быть плесень, если туда водяной пар не проникает?
А до того, как сделали натяжные, проблемы были? Кмк, если нормальный воздухообмен, нет больших перепадов температур, сырости, то ничего не будет шелушиться. А если шелушится, вопрос к штукатурке.
Не могу сказать, мы сразу делали натяжные, выносили вторичку до кирпича.
Натяжных потолков нет в наших "исторических" квартирах. В одной из них есть окно, оно часто открыто, проблем с потолком никаких.
Во второй окна нет, проблем с потолком тоже нет. Но в этой квартире такая вытяжка в туалете (без мотора, чисто на самотеке), что даже мои арома не задерживаются. И слышно в вентиляцию, как птицы поют (видимо, живут на крыше). То есть лютая вентиляция сделана, по уму прям.
Где-то течет.чудес не будет.
Снимать гипсокартон, смотреть, где течет, устранять причину и потом только ставить новый и закрасить.
Я это когда-то проходила. Вроде нашли причину сверху, не снимали потолок. Вроде устранили, зачистили и закрасили.
И так потом 2 раза. Пока не сняли гипсокартон с потолка.
Снять и потом заменить сразу вышло бы намного дешевле.
Не, нигде не течёт. Когда течёт - другая картина. Слой краски шелушится от влаги. Это ж - ванна, пар и проч.
Тефтелька, я так понимаю, у вас больше одной ванной комнаты?
Вы пользуетесь всеми? В смысле помыться?
И во всех потолок шелушится от влаги?
Я вас не разубеждаю, но то, что вы пишете, идет вразрез с моим опытом:
Несколько ванных комнат, всеми пользуются приблизительно одинаково. Потолок пузырится только там, где сверху какая-то протечка. Влажность, кондиционирование, частота пользования - во всех ванных одинакова.
Вентилятор, как вы пишете, у вас работает. В смысле - вытяжка.
Он не пузырится, он шелушится. У нас 2 ванных комнаты, но почему-то мы все любим пользоваться - одной, так исторически сложилось :). И потолок шелушится в этом сан-узле . Дочка забывает включить вытяжку, муж - надеюсь, что не, но голову на отсечение не дам :). Дочь обожает водные процедуры - много времени там сидит.
Есть еще вариант, что неправильно покрашен.
Если, например, на масляную краску положили сверху водоэмульсионку.
Тогда тоже может краска отставать.
как посмотреть... зато если какой вдруг пролив, так от души... а вы можете вообще не париться на эту тему
Мы - да, можем не страховать гражданскую ответственность. И потолок у меня 4 метра, потому что 1 этаж, так-то в доме 3. Но для меня это сомнительное счастье.
стало быть нужна не именно гардеробная для чьих-то шмоток, а типа кладовки для всякого нужного? Маленькую отрезать некуда, остается большая)
Объединить кухню с маленькой комнатой, чтобы получить нормальную кухню-столовую. В "большой комнате" сделать спальню с гардеробной.
Тогда избавляться от барахла. Я прекрасно знаю теперь, что можно жить с одним чемоданом вещей. Это то, что умещается на три полки шкафа. Сезонное - на антресоли.
Еще можно круглогодично снимать "кладовку" в помещении коммерческого складирования. Мы снимали такую, это вполне удобно и недорого. Главное, чтобы это было 5-10 мин на машине. Сразу решен вопрос с велосипедами, лыжами, грилями, всей сезонной одеждой и обувью. И склады эти сухие и чистые (в отличие от подвалов).
Ну, антресоль будет, большой шкаф у меня в комнате будет, у дочки в комнате будет и в коридоре тоже будет по шкафу. Нам на двоих, думаю, хватит. А мужики останутся в соседней квартире.
У меня в подобной планировке шкаф в большой комнате, за дверью. В коридоре, как входишь справа. И всё. На 3их прекрасно хватает.
Помада планировка у меня. П 44 у меня. У меня с легкой руки Бугримыша, сделана гардеробная и встроенный шкаф в маленькой комнате. Довольна. Меня не хочу, конечно в гард поставила бы проф систему, а так, муж сам делал полки, ящики и рейлы.
Автор, Евы.. не судите строго по рисунку )) как смогла)). Красные линии это стены)), желтее - двери шкафа, синие дверь и перегородка в шкафу, который получился путем переноса стены в маленькой комнате. У него 2 двери из коридора и мз комнаты ..
Вход в гард сначала был из большой комнаты, потом заделали там дверь и сделали дверь купе-зеркало со входом из коридора..
Надеюсь, понятно написала и нарисовала ) 
А нарисуйте попонятней, я ничего не поняла. Интересно, как Бугримыш сейчас поживает, бросила дизайн или нет.
Давайте я завтра на листочке нарисую .. ну попробую)) а вообще, напишите в личку) я ваи фото лучше сделаю))
Можно. Там 140, наверно, проем будет. Все хотят большие распашные двери, высотой 230. Значит хрустнем. По факту, посмотрим, что останется для шкафа.
А почему крайняя секция совсем другого цвета? Она там как не пришей кобыле хвост. Извините конечно.
Будьте проще и к вам потянутся))) Давно ли вы оперируете понятием сечение в отношении обстановки)
Что такое сечения не знаю. Вижу коридор с очень приятным цветом, вижу часть шкафа (это нравится вам) и вижу секцию которая тут вообще никак. Это моё мнение просто.
Конечно это ваш ремонт и вам нравится.
"Стенка" - какая прелесть:-9 Самая удобная штука все-таки. А верхние шкафчики рабочие? Понятно что для каждодневного пользования вряд ли будут использоваться, получается что-то типа антресолей?
Конечно рабочие. Да, что-то типа антресолей.
Мы все высокие )))
С таких высот муж обычно достать что-то помогает.
Уже не так и бросается в глаза этот клин
Будут шторы и наполнение шкафов - и вообще он потеряется
Цвет стен здесь хорош, прямо сливочное масло
Ремонт красивый, но это не от ремонт который делают раз в жизни. Красивый цвет обоев скоро засалится, квартира маленькая, все крупные, он через несколько лет вид потеряет. Такой ремонт хорош для портфолио, он будет требовать постоянного обновления. А уж то, что член семьи протискиваясь входит на кухню и в туалет - это вообще за гранью. И да - надо было выравнивать. Клин смотрится ужасно.
А почему такая реакция на просто мнение? Тема заведена для обсуждений или только восхвалений?! Мне тоже не нравится. И прежде всего-сами дизайнеры. Или это их проба пера. Косяки бросаются в глаза. Но ведь жить в этом будет хозяйка и семья. Им нравится, устраивает. Ну и ладно.
А зачем писать про засалится, испортится, и т.п.? Или только в этом ремонте все будет плохо? А все остальные - вечные?
Нафига это "просто мнение" в сотый раз писать?
Ну а зачем Инга выкладывала ремонт, пусть бы предупреждала, что надо только хвалить. Засалиться - потому что светлые обои, квартира маленькая, жители крупные и неаккуратные. Ремонт красивый, но увы непрактичный и вовсе не подходит под ремонт до конца жизни. Вообще ладно - не стали выравнивать поверхности, но сделать туалет, в котором 1,5 сантиметра мешают зайти хозяйке??? Оставить маленькую кухню при таком размере хозяев, проход в кухню 50 см! Это уже просто за гранью. И еще и не пиши, ога.
ААААААААААткуда взялся проход в кухню 50 см-то? :)))))))))) Из каких фантазий Вы это вытащили-то? :))
Около 80 там...
тут форум. обмен мнениями. если так ранят эти замечания, то зачем тогда выносить на обсуждение.. ничего в "засалят" нет такого. у меня, например, на стенах краска, а сверху декоративный песок. мне нравятся, но некоторые с не привычке царапаются... и говорят- я бы не сделал так.. меня вообще не трогает все это ...зы. насчет вечности- у меня в ванной 25 лет назад положили плитку. красивую, итальянскую. Верите, хоть бы одна треснула или что то с затиркой произошло... реально как новая и положена идеально... другое дело, что морально устарела.. но боюсь трогать, думаю, что качество будет хуже..
без понятия. у меня объединенный санузел (чему рада,) хотя серия дома совсем другая - улучшенная П55-М. т.е. санузел был не микро... зы. в похожей на Ингину квартиру жила в детстве... туалет- ужас клаустрофоба... объединили, мне кажется, просто все. Там даже стройному неуютно..
Ненене )) я всё детство прожила с объединенным санузлом.
"Это не должно повториться!"
Пусть маленький сортир, но чтобы никого не предупреждать типа "я в душ на 40 минут, кому надо - воспользуйтесь!"
тут да, есть нюанс... но, если честно, не помню прямо ужасного напряга из за этого... как то мы расходилиьс, даже когда дети были маленькие. по мне- ПОСТОЯННЫЙ стресс от микро шкафа с унитазом- гораздо хуже.
Первое мое слово - красивый. Очень красивый, просто с нюансами. Инга возрастная дама как и я, огромные деньги вряд ли на нее свалятся. а такая квартира потребует постоянных вложений. Розовые мумитроли затрутся тут же, стразы с плитки! отлетят, вид будет у плитки непрезентабельный. Чтобы зайти в туалет с плиткой - не хватало 1,5 см. Я такого и не слышала никогда. В кухню! надо хозяйке протискиваться...
Вот я с вами полностью согласна! Ремонт красивый. Но если не знать сколько он стоит! Этот ремонт со всеми косяками, низкими потолками, микроскопическими санузлами и кухней хорошо выглядит для ремонта, который делали бы своими силами. А вот для ремонта, который длится почти год и с привлечением дизайнеров - это писец просто! Да и квартира совсем не та, чтоб туда вбухивать столько денег…
Этот ремонт НЕ про "выглядит" ))))))))) А про "мы себя чувствуем во время и после".
"Своими силами" - мы бы ничего и никогда не сделали.
Дорого? Да. Но у нас есть на это деньги. НА ЭТО.
На другое - нет, а НА ЭТО - есть.
Да. Они сделаны в соответствие со стандартами красоты хозяев.
У меня никогда не было такой ситуации, что я бы сделала не знаю. Лепить везде гипсокартон, снижать высоту и так низкого потолка? Или тонны штукатурки? Не знаю. Я вижу, что работали с тем, что было. По макс вытянули из планировки. Остальное все очень дело вкуса..
А что там неозможного вытянули? Уменьшили и без того маленькие кухню и туалет и маленькую комнату.
Ну посмотрите на фотки. Нет ощущения тесноты. А ведь там очень маленькая площадь. Это сложно сделать так, чтобы не выглядело тесно. Вот эти не особо дешевые решения это и вытянули.
Туалет уменьшили для того, чтобы сделать побольше душевую. Окно в туалете - супер решение для того, чтобы визуально увеличить мини пространство (кстати подобный прием запланирован у меня в доме, но в других пропорциях конечно))
Ну какое ощущение тесноты? Это самая настоящая теснота и есть!)) Человек боком по коридору ходит) Там скоро и второй человек догонит первого по размерам и будут уже два человека ходить боком. Это ощущение, по-вашему? Это полный пи&ц в ремонте за много млн. Как окно в туалете поможет человеку пройти прямо по коридору? И вообще то окно в туалете - это прием советских «дизайнеров», а не Ингиных.
В пределах статистической погрешности )) на десяток квадратных сантиметров )))))) Впрочем, может быть и нет... за счет уменьшения толщины стен )))
у близкого родственника точно такая квартира в доме этой серии. Он еще при царе горохе сделал совмещенный санузел. И то, стиралка у него стоит в кухне. И живет он там один. Там реально на троих кроить надо пространство, при условии необходимости просторного душа и раздельного санузла.
Просто недоумение - что там делали целый год?
За 4 месяца делается ремонт с выравниванием всего.
Ремонт-ремонт закончен 1 апреля. С тех пор меблируемся.
И да, в данном моменте со сроками промахнулись.
Очень много, и это дорого, да. Выравнивали перепады плит на потолке и пол, в итоге всё получилось.
Ну, я при выборе "потолок 235 или щели" делаю выбор - щели.
Честно сказать, и выбора-то этого нет )) ибо муж ростом 191 см даже ДУМАТЬ не хочет о снижении высоты потолка )))
Ок. Поняла.
У меня на первом этаже в дома 255 потолок. Ну еще и в деревяшках. Я не представляю, как его опустить. Только в белый покрасить. Может и кривой, начнем ремонт делать узнаем..
Мы избавились от "верхнего света".... муж ходит и неприлично счастливо улыбается, ибо психологически потолок резко поднялся.
Этот эффект дорогого стоит. Щели пофиг. Счастливый муж - НЕ пофиг )))
Да. С верхним светом у меня есть мысли. Я сделала уже в венском доме (там правда потолки выше 270) рейлинг по контуру со светом, направленным в стены. Тут будем такая же концепция. Свисающие лампы только над островом в кухне и над обеденным столом. В остальных помещениях на первом этаже никаких люстр и тд..
На втором этаже разгул люстр и ламп и всего остального..
В смысле неправду? Потолок 250... если выровнять и пол, и потолок - будет 235-240
)))))))))) ........... я типа опять вру, а не кто-то читать не умеет ))))))))
Вы написали так, что будто у вас сразу потолок 235. А вот это неправда. Да, у нас после выравнивания примерно такая высота, а было 2 50
ДАВЫЧООО ))))
https://eva.ru/topic/77/3684408.htm?messageId=109084552
Ну отлично. Видимо у вас и высота потолка несколько больше?
Тут мне кажется совсем конура бы получилась..
У меня такая же высота потолка. Стало ниже, но было хуже с кривым потолком и полом. Но не конура. Конура - это когда 1,5 см решают пройдет хозяйка квартиры в туалет или нет.
Ремонт - красивый, мне понравился, но это как женщина без зубов, но в дорогих украшениях и шубе. Тут зубы - выровненные перепады. Плюс офигительный минус при дизайнере - крошечная кухня, туалет и коридор с местом, где надо протискиваться. Понятно, что люди по-разному живут, но отдать за это еще миллион дизайнеру?
А что не так с женщиной без зубов и в шубе? :)))
Ах, ВААААМ не нравится )))))))))))) и что? :))
Кухня, Для. Меня. Техническое. Помещение. Мне на маленькой кухне резко удобнее, чем на большой.
Проверено.
А вот опустить потолок до 235 - нам ОЧЕНЬ дискомфортно.
Но Вы еще сто раз напишете, что это ужасно ))))))))
А миллион (вообще-то на этот момент 700 тыр) мы не за ДИЗАЙН платили...
250 тыр мы платили за планировку и размещение мебели.
Остальное - за отсутствие геморроя при осуществления ремонта.
Дизайн нам бонусом пришел,... ))) бесплатно ))))))
для портфолио они бы снесли маленькую комнату, сделали бы там открытое пространство. Все бы влезло, сортир с плиткой в том числе. Но поскольку у конкретной семьи пожелания другие, то где тут про портфолио? Что заказали, то и сделали...
Чойта? :)))) Там около 1 метра между столами... там как раз отлично. Как раз столько по классике между кухней и островом ))))
Конечно. Дело дизайнеров - следить за тем, чтобы их проект реализовывался согласно их задумкам + вносить изменения, если возникнут новые идеи )))
Больше 5 см на стену и потолок штукатурки не наносят. Это по технологии. И это тоже в 2 слоя. Конечно, все квартиры разные. Инга за 5 см стену переносила, а мы с каждой стены сбили только штукатурки старой цементной по 5 см.
С потолком ладно, а вот залитый водой 60-летний паркет как можно было оставить при таком дорогом ремонте?? Да, его отреставрировали, и выглядит он сейчас хорошо… Но на сколько его хватит еще?? Обои можно за день переклеить? А пол? Ну не бывает чудес! Через пару лет швы между дощечек опять разойдутся, будут черные щели, лак сотрется… Все это будет опять шататься под ногами… Я все это сама проходила, к сожалению…
Я тоже походила. И тоже считаю, что старый паркет надо было в топку. Новый стоил бы сопоставимых денег. Нет ничего хорошего в советском паркете. Упорно считаю,что надо все старое выгр*мат* и стяжку заливать.
научите пользоваться воскресным валиком. у меня тоже есть такой, 10 см средней лохматости. но стена после его применения выглядит, мягко говоря, ненарядно. на белом прямо очень видно.
Инга где-то писала, что переклейку обоев она не считает ремонтом. Так что косметику будут делать периодически, видимо...
Просто все решено в светлых тонах, особенно убила плитка со стразами. Они отвалятся! И вид будет совсем другой! Такой ремонт хорошо для портфолио и доя богатых людей, который могут плитку регулярно перекладывать.
Поздравляю! А что в предыдущей квартире она так плохо убиралась? Все время засранное все было...
Спасибо! Просто после 168 кг у меня наступает скачок состояния, которое уже РЕАЛЬНО мешает жить.
С этим надо справляться.
Так-то даже отлично, что все эти размеры установлены в моем максимальном (я очень надеюсь) весе.
"Просто после 168 кг у меня наступает скачок состояния, которое уже РЕАЛЬНО мешает жить" Ну и??
Девы, спрошу тут.
Мне нужно заказать визуализацию. Нет ни у кого человека, чтобы заказать?
Меня озадачили. У меня есть коридор на втором этаже с опущенным потолком. Я собираюсь снять потолок и сделать его высоким до крышы. В крышу хотела круглые "окошки".
Вот меня озадачили, что для круглых окошек, надо потолок немного опустить и уйдет мой домик на крыше.. А если не опускать, то окна обычные для крыш.
Мне надо сделать визуализацию, чтобы выбрать..
Света, есть 3dd сайт. Там форум, куда можно кинуть что то типа ТЗ на выполнение. И ещё, есть специалисты на интерьере, а есть спецы по экстерьеру. Ставь задачу, откуда видеть хочешь.
Ну сейчас, если девочка согласится, то с ней и договорюсь. А нет - спасибо, пойду на форум. Хочу все изнутри видеть. ) Счас фотку покажу.
Хочу разобрать всю стену до крышы и поднять потолок до нее же. Сам коридор будет продлен до конца, до окна.
В крышу будут вставлены или круглые окошки (не знаю как они правильно называются, споты дневного света) или обычные окна для крыши. )
Вот не могу решить..
Вот это все хочу убрать )
Здравствуйте, у меня родственник молодой занимается, нужны контакты? Если нужны, напишите в ЛС, пожалуйста.
Не дизайнерское, моя комната, планировалась типа мастерская/кабинет, но с возрастом решила что спать одной комфортнее)
Почти доделала, в планах только тумбочки перекрасить.
Тумбочки и стул из старого офиса мужа, шкафы икеа из хоффа, кровать и комодик с озона, люстра с алика. Здесь дорогой (относительно) только стол массив бука и прикроватная лампа)
Уютно, цветовая гамма спокойная. Подскажите какой ширины кровать? Я как раз в процессе заказать такую, со стеночкой.
Для меня размер идеален, думала про 140, но тогда бы дверца шкафа до конца не открывалась и вот теперь весьма довольна, что все же выбрала 120
Очень симпатично. Единственное, наклеила бы пленку или сделала внутренние занавесочки на правый шкаф, где папки стоят. Чтобы папки не нарушали спокойствия )
Мне тоже нравится! Цвет мятный просто супер)
Но... если б я была царица/с/
На втором фото почему то ассоциации с медицинским шкафом. Заменила бы на этажерку, открытую. И тумбочек-тумбочек в прямоугольном исполнении много. У кровати можно что то круглое. Но это так... Варианты)
Тумбочки моя страсть, люблю когда все по полочкам)
И да их получилось много, но мне так комфортно с этими многочисленными ящичками
А распашные двухстворчатые двери 120 на 230 это узко? Когда одна дверь 60? Надо строить стену, вопрос - под какой размер строить? Я сначала хотела оставить в маленькой комнате большой проем, а в большой комнате поставить дверь 90. А сейчас оказалось, что там проем 140, можно сделать двери 120. Но тогда и в маленькой комнате нужно делать 120? Или там можно 140? Это пустые стены, там ни полок, ни шкафов не будет.
У нас так и было. Зря я не сфоткала на память те огромные двери по которым вздыхают мои дети)) Была одна широкая, вторая поуже. Сейчас муж говорит, что это ущербная конструкция. Мне уже мозг сожрали этими огромными дверями. Даже дочка 10 лет хочет большие двери себе в комнату. Будут деревянные буковые двери, покрытые белым маслом или пинотексом.
Дикое, но ... :)
Хотелось бы продолжить тему планировки, если не возражаете
вот тут
https://eva.ru/topic/77/3684408.htm?messageId=109084299
Только планировки?
Я в ужасе от дизайна! Дурацкая бестолковая скамья в гостиной, занимающая и без того небольшое пространство. На гостиную не тянет. Чёрный коридор :scared2
Дикая кухня с мешаниной цветов и орнаментов!
Красная спальня! Хозяева за 2 года не устали от этого цвета. Да они просто чёкнулись. Красный очень тяжёлый цвет.
Парню, спасибо, не наворотили диких цветов.
Я бы не смогла жить в такой квартире, слишком много всего.
И маловата квартирка, конечно, для 4-х.
Единственное, что понравилось, это использование винтажной мебели и аксессуаров. С возрастом я это всё зауважала.
Не, не два... лет пять они там уже... если не больше.
И продолжают взахлеб
Он - крупный ученый, профессор, декан одного из факультетов культового вуза,
она - действующий психолог.
Старший - в 57-й. Младшей еще и года нет.
Им там прям хорошо ))
Да, мне интересно, почему Дикое считает, что там трогали несущие стены и как именно она бы улучшила ПЛАНИРОВКУ.
Вкусовщина типа "я бы трехнулась от красной спальни" меня вообще не волнует. Лично для меня цвета ту мач там, но я там и не живу.
Особенно мне нравятся комменты типа "квартира маленькая для 4". Им одного в детдом сдать или может вы им новую квартирку купите?
вообще, их там пять ))
вообще, это сталинка на Кравченко. За эти деньги они явно могли бы купить полэтажа в Павшинской пойме. Но купили эту, маленькую, и сделали под себя.
Глянула ща ))
В тех домах такие квартиры 31-36 млн
В пойме за такие деньги реально взять 130-140 кв.м. ))
А в Реутове - 150 в мраморе ))) https://reutov.cian.ru/sale/flat/318767975/
За 30 а Пойме будет дворец. И Реутов ваш не интересный, я люблю Реутов, который у метро, там реально классно с точки зрения инфраструктуры, у меня там квартира сдается. Там ничуть не хуже, чем на Вернадского, чесслово. И метро быстрое до центра. Я б там жила без проблем. В Пойме - не знаю, очень плотность застройки большая, меня это визуально угнетает. К тому же, я думаю, что они этот визуальный шум уже частично выгребли и заменили на нужный. На фотках - это живописно раскиданные дизайнерами книжки и прочее. Я у себя борюсь вот с этим «шумом».
А причем тут дворец-то.
Важно время на дорогу. Детей, в частности.
Тут не "шум", тут - кому грохот, а кому - симфония.
И нет, я ж была там. Там "шума" ЕЩЕ больше.
Ну и посчитайте время на дорогу из Реутова, с улицы Котовского, к примеру. Удивитесь, что ваша Преображенка не сильно ближе. А из какого-нибудь Конькова и того дальше до центра.
Не такая значительная разница, чтоб жить всей толпой. Дети часто ездят далеко в приличные школы, а уже в институты и подавно. Ну и далеко - это в пределах часа дорога. И 57 - такое себе место, если не маткласс, да и про него я не уверена. Охрана, которая покупает богатеньким деткам наркоту…
Ну так по их ремонту и видно, что они… кхм… странненькие) Ну и по всякому старью, типа лавок, которые они натащили в квартиру. Так что им и не нужна квартира больше, зачем? Главное, чтоб все старое и дряхлое было!
ну да - винтаж, плавно переходящий в антиквартиат )))
И да, бОльшая квартира им не нужна.
Ну, или не была нужна до третьего ребенка.
Впрочем, думаю, что они просто отселят старшего.
Они там ещё расплодились?:scared2
Каждый сходит с ума по-своему, конечно. Толкаться в микро-квартирке с одним унитазом и раковиной впятером или купить большую квартиру, где всем есть место.
Детей жалко, но это не самое страшное, что может быть в детстве.
Ума не приложу.
школьника - вряд ли.
Студента - запросто )))
Что-то мне подсказывает, что у этого мальчика замах на ВУЗ с ОБЯЗАТЕЛЬНЫМ общежитием )))))))
Есть, конечно ))) ... ну как обязательное... настоятельно рекомендованное... и без него там учиться еще сложнее.
При чем тут убогость? Москвичам общежития не дают, если вы уверены в обратном, давайте ссылку.
НЕ ДАМ )))) Оставайся в своей убогой картинке мира )))
Ну, или сама выясни, какой такой ВУЗ не просто "ДАЕТ" москвичам общагу, но еще и настоятельно рекомендует, чтобы они жили именно там.
Но рекомендует настоятельно.
И этим рекомендациям следует подавляющее большинство.
Ибо учиться ИТАК дико сложно, а еще и время на дорогу тратить....
Воспользоваться - безусловно собирается.
Пользоваться - ума не приложу.
Будет день - будет пища )))))))
ну безотносительно того что для меня этот интерьер совершенно не подходящ, видно что люди там живут интересные, увлеченные, самобытные.
И при любом раскладе, локация дорогого стоит. 3-4 часа в дороге ежедневно, и не нужны будут никакие унитазы, если домой приходить только помыться и поспать.
А какие 3-4 часа в дороге?? Ну из Реутова в центр и на машине может и наберется… А с обычного окраинного района Москвы, типа Ховрино, до центра максимум 45 минут на общественном транспорте. А вот за сколько часов они из своей локации смогут куда-то выехать на машине - вот это главный вопрос! Типа дачи какой-нибудь или в ТЦ, или в парк? Или так и сидят все лето в центре и дышат прекрасным «свежим» воздухом? У меня мама живет на м Белорусская, это пипец! Чтоб за ней с моей окраины заехать на машине и отвезти на дачу, это надо лишние 1,5 часа закладывать, чтоб только из центра выехать на Ярославское шоссе! Но сейчас, конечно, чуть получше стало… Платные парковки очень помогли, машины не забивают улицы в три ряда.
Бросьте. 40 минут в день погоды не сделают, если чел возвращается в отдельную комнату с дверью, а не в бардак и шум.
Кому что.
Бардак и шум обычно создавали гости из Москвы, которые почему-то считали обшагу - чем-то вроде пионерского лагеря, "вечным праздником".
Для постоянно живущих "бардак и шум" бывал не чаще, чем в домашней жизни.
Но длиннее, да. На 40 минут отдыха в день.
А то и больше. Ибо для того, чтобы развлечься - опять НЕ НАДО тратить время на дорогу.
Инга, у вас ностальгия по молодости. Не будет так сейчас, вы прям какую-то удивительную наивность иногда проявляете. Вон одногруппницы моей жалуются, что им степуху вовремя не выплатили, и жрать нечего. Ваша просто в такой ситуации приедет к маме с папой. Если воды горячей не будет, она простой поедет помыться домой, а не будет ведрами воду кипятить. С чего вы взяли, что девы, с которыми она окажется на соседних койках, станут ее подругами? К чему эта принудительная дружба, ваша сама не в состоянии выбрать себе подруг, без общежития?
Дык и я к маме ездила )) Ведрами ТОЧНО ничего не кипятила ))))
И подруг к маме возила )))
Что значит "окажется"? )) Сначала "окажется", потом поменяются, вместе поселятся.
Причем тут ВООБЩЕ подруги-то?
а что общага? я не жила, в гости частенько ходила. По сути - пионерский лагерь для ответственных. Ничего ужасного не видела.
Да все многодетные, которые напихивают детей в одну комнату на двухэтажные кровати, отлично знают, что им надо! А потом бегают, психологов и психиатров детям ищут… И дети из дома бегут без оглядки, когда вырастают. Хотя мои мысли полностью опровергает семья Тепляковых, конечно! Там у всех все отлично и новая квартира в пятиэтажке шикарная! Главное ж локация.
Это ж классно, когда взрослые дети уходят из дома.
Это правильно.
Неправильно - когда они там остаются ))))
Инга, вы меня радуете. Чтоб ребенку уйти из дома, нужна хата стоимостью 10 млн минимум или съем 40+. Это здорово, когда ребенок имеет возможность уйти. Вот так корректнее.
Ну, с тем образованием, о котором я пишу, съем доступен очень быстро.
Да и с доходами родителей - тоже.
Главное, чтоб этот ребенок дождался возможности заработать на этот съем! А не сбежал ровно в 18 на работу, а не в ВУЗ.
Там квартиры снимают, в округе одни новостройки под сдачу студентам
В общагу никто не рвётся
Инга считает это грандиозным опытом, все, кто не прошел общагу, по ее мнению, жизни не нюхал)
Общаги в которых жила Инга кончились, причём достаточно давно. Уже пара поколений сменилась. Другие сейчас студенты, эгоисты и индивидуалисты. А скрваться от назойливых мамаш не обязательно в общаге.
Вы раненько продумали жизнь за дочь. Она не обязана соответствовать вашим представлениям. Вас ожидает масса сюрпризов! И не надо настолько жить вместе с ней.
Не, никаких сюрпризов меня не ожидает. Потому что я ничего не ожидаю, вообще.
Но таки да, вместе со взрослой дочерью я жить не буду.
И да, родительский дом - это НЕ дом дочери, это родительский дом. Где можно перетоптаться некоторое время. Но жить надо В СВОЕМ доме. Пусть он арендованный.
А должно быть некомфортно? Даже сейча с ремонтом вы стараетесь не ради сосбвенного комфорта, вернее не только
Ну, даже принц Уильям в юности чистил сортиры в какой-то жаркой оппе мира...
ну да, я считаю правильным посмотреть на разные стороны мира... и выбрать собственную.
При наличии места, где всегда можно поесть и отоспаться вволю - вполне себе отличный вариант,
Это не сделало его нормальным человеком, принца. Я простив общаги и против погружения в г-но наших тепличных детей. Это не укрепляет характер.
А я за самостоятельную жизнь взрослых людей.
И да, я считаю 18-летних - взрослыми.
И да, я считаю большой печалью, если 18-летние не стремятся начать собственную жизнь, если любопытство о реальном устройстве мира не берет верх над бытовым комфортом. Тем более, если есть постоянная подстраховка со спины.
Совершенно обычная самостоятельная жизнь.
Учеба. Быт. Друзья. Развлекуха.
Всё совершенно точно так же.
Но без родительских глаз.
Наличие ваших глаз чем грозит дочери? Вы за себя не ручаетесь и не в состоянии реализовывать в жизни те постулаты, которые так яростно озвучиваете и защищаете на Еве?
Ваша дочь уже высказала свое желание начать в 18 лет категорически абстрагироваться от вашего мнения? И с чего вы решили, что будете это мнение высказывать без ее на то просьбы? А если в ответ на ее вопросы, то что в этом криминального? К чему этот нервический капс в любом посте? Вы по-другому не умеете свои глублокие мысли доносить?
ИМЕННО потому, что от мнения мамы абстрагироваться сложно - как раз и надо жить отдельно.
И нет, дело совершенно не в высказываниях.
Дело в жизненном укладе.
А капс мой НЕРВИЧЕСКИЙ только в ВАШЕМ собственном сознании. Зачем оно у Вас такое НЕРВИЧЕСКОЕ? :))))
потому что вы нарушаете правла форума, знаете, что нарушаете, но никак с этим справиться не можете
+100500 Каждому повзрослевшему ребенку нужна отдельная комната. Без вариантов. Все напиханные в одну, потом строго по одному ребенку рожают и жутко боятся стать многодетными. И, собственно, лучше просторно жить в Реутове, чем тесно на Вернадке. К тому же, чем старше человек, тем больше ему нужен отдельный угол. Отдельный и от детей, и от мужа.
Это тоже вкусовщина у вас. Я, например, не всякое новое в дом притащу. Очень не хотела айкиевский новый шкаф. просто некогда было. Все, у меня будильник заверещал, труба зовет.
Мне показалось, судя по проемам в несущей стене.
Я не видела старый план, надо посмотреть и сравнить, чтобы настаивать.
Может, и не права. Тем не менее я бы изменила планировку.
Словами написала, давайте нарисую в субботу вечером ( моим вечером).
Отвлечься написать я еще могу, но рисовать - у меня по делам завал, особенно на работе. Вендоры косячат и вроде начинают быковать.
Еву и другое использую, как потянуться.
Пройдите по ссылке, там все планировки есть. Все несущие ровно в тех местах, где были, ничего не тронуто. Но да, они немного нестандартно смотрятся. Поэтому вам и ПОКАЗАЛОСЬ. Но написали вы совсем по другому, вполне уверенно.
Да, мне бы хотелось посмотреть на картинку, потому что я из описания про углы кухни ничего не поняла, а интересно
Да не уличаю
просто удивляюсь, как можно так уверенно говорить о том, чего не знаешь:)
Ну и соответственно интересно, что бы вы сделали ЛУЧШЕ, потому что о работе дизайнеров вы отозвались нелицеприятно
а так как я как раз и планирую у них планировку заказывать, хочу понять, где можно было лучше сделать
Вдруг мне и платить не надо за планировку, а просто на Еве выставить свою и волшебный ключик у меня в кармане:)
Перелезаем в новую тему.
https://eva.ru/topic/77/3684719.htm?messageId=109087683



































